Welcome Home

1630 S Division Street, Carterville, IL 62918

$325,000

4 bed | 2 full bath | 1,812 sq ft
MLS# 1265304
I want more information
New Listings
Price Reductions
Neighborhood Trends
Value of My Home
Coming to Peoria
Leaving Peoria

Immaculately maintained one-owner custom home built in 2014, located in the desirable Gentry Shores subdivision.

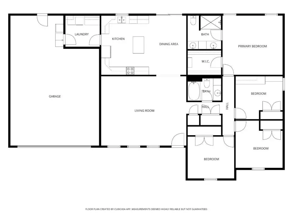
This 4 bedroom, 2 bath home offers a functional layout with well-sized bedrooms and a move-in ready feel from the moment you step inside. The kitchen features a center island, ample cabinet space, and plenty of workspace, opening nicely to the main living area for everyday living or gathering with friends and family. The primary suite includes a walk-in closet and a private full bath for added comfort and convenience. This home has been thoughtfully cared for, with HVAC serviced twice a year and annual termite inspections already in place. Spray-in insulation adds efficiency, and the composite back deck offers a great outdoor space without the maintenance. The beautifully landscaped lawn adds to the curb appeal and creates a welcoming first impression. A 2 car garage with built-in shelving provides additional storage, making this home as practical as it is well kept.

Property Details

City
Carterville
County
Williamson
Subdivision
Gentry Shores
Schools
  • Carterville
  • Carterville
  • Carterville
Type
Residential
Style
Ranch
Garage
  • Attached
  • Garage Door Opener
Cars
2
New Construction
No
Bedrooms
4
Full Baths
2
Square Ft.
1,812
Livable Square Ft.
1,812
Acres
0.63
Apx Lot Size
121x223x118x223
Year Built
2014

Room Levels & Sizes

BsmtLowMainUppAddlTot
Full Baths002002
Half Baths000000
BsmtLowMainUppAddl
Bedroom 114x14
Bedroom 211x11
Bedroom 312x12
Bedroom 412x11
Living Room21x17
Dining Room9x14
Kitchen11x15
Third Floor

Features

Roofing
  • Shingle
Garage/Parking
  • Attached
  • Garage Door Opener
Basement
  • None
Heating/Cooling
  • Heat Pump
Water/Sewer
  • Public Sewer
  • Public
Kitchen/Dining
  • Dining Formal
  • Island
Appliances
  • Dishwasher
  • Dryer
  • Microwave
  • Range
  • Refrigerator
  • Washer
Road/Access
  • Paved

Financials

2024 Taxes
5333.76
RMLS Alliance IDX

Listing information is provided by RMLS Alliance LLC courtesy of HOUSE 2 HOME REALTY, Kristen Anastasi, as of 04/02/2026 15:30pm exclusively for consumers' personal, non-commercial use and may not be used for any purpose other than to identify prospective properties consumers may be interested in renting or leasing. Data is deemed reliable but is not guaranteed accurate by the MLS. The listing broker's offer of compensation is made only to participants of the MLS where the listing is filed.