Welcome Home

1613 W Pioneer Parkway, Peoria, IL 61615

$1,699,000

6,800 sq ft
CLS# 1265152
I want more information
New Listings
Price Reductions
Neighborhood Trends
Value of My Home
Coming to Peoria
Leaving Peoria

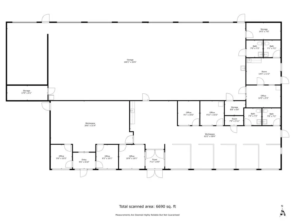
This car dealership, sales and service center and is available for sale and lease.

It provides high visibility and traffic counts on Pioneer Parkway with easy access to North Peoria, Dunlap, Route 6, I-74 and several other Peoria car dealerships and auto related businesses. The sales center side includes 5 private offices, 5 semi-private offices, foyer, lobby with coffee bar, open work area (suitable for 4 cubicles), 2 ADA compliant restrooms, and storage. The service center side includes 7 bays, each with 10'x10' overhead doors and floor drains, as well as a shop restroom, electric room and utility room. The service center also has a separate entrance, lobby with ADA compliant restroom, and service office. There are well lit parking lots around the building with 85+ spaces. This property is located in the Peoria Urban Enterprise Zone Amendment #8.

Property Details

City
Peoria
County
Peoria
Type
Commercial Sale
New Construction
No
Zoning
C-2
Square Ft.
6,800
Avail Square Ft.
6,800
Office Square Ft.
2,800
Acres
2.24
Apx Lot Size
300' x 325'

Features

Roofing
  • Flat
Heating/Cooling
  • Forced Air
  • Natural Gas
  • Radiant Ceiling
Water/Sewer
  • Municipal/City

Financials

2022 Taxes
28378.66
RMLS Alliance IDX

Listing information is provided by RMLS Alliance LLC courtesy of RE/MAX Traders Unlimited, Justin Ball, as of 03/27/2026 15:15pm exclusively for consumers' personal, non-commercial use and may not be used for any purpose other than to identify prospective properties consumers may be interested in renting or leasing. Data is deemed reliable but is not guaranteed accurate by the MLS. The listing broker's offer of compensation is made only to participants of the MLS where the listing is filed.