Welcome Home

315 Evergreen Trail, Herrin, IL 62948

$299,900

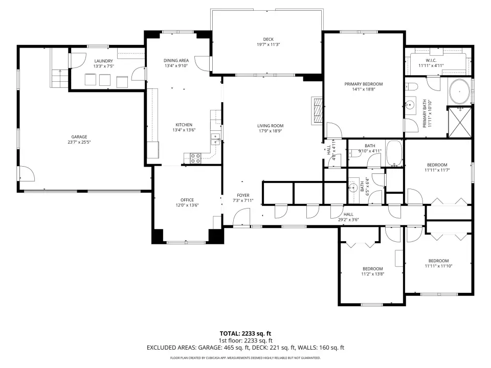
4 bed | 2 full bath | 2,233 sq ft
MLS# 1264692
I want more information
New Listings
Price Reductions
Neighborhood Trends
Value of My Home
Coming to Peoria
Leaving Peoria

Welcome to comfortable, move-in ready living in the highly sought-after Carterville School District.

This beautifully updated 4-bedroom, 2 bath home in Herrin offers the perfect blend of modern updates, functional space, and a lifestyle designed for everyday comfort. Step inside to discover a home that is fresh, updated, and ready for its next owner. The thoughtful layout provides generous living space for relaxing, entertaining, or working from home. With four spacious bedrooms plus an office, there is plenty of room for family, guests, or a dedicated office or hobby space. The kitchen and living areas flow comfortably, creating a welcoming environment where gatherings feel effortless. Natural light fills the home, enhancing the warm and inviting atmosphere throughout. Outside, the partially fenced backyard provides creates the perfect backdrop for everyday living. Some updates include: Roof and gutters (2024), HVAC system (2020), Thick Laminate Flooring (2020), Encapsulated Crawlspace (2020), Microwave (2020), Sump Pump (2020), Dishwasher (2020). Ameren Electric: $218/avg monthly bill

Property Details

City
Herrin
County
Williamson
Subdivision
Forest Park Estates
Schools
  • Carterville
  • Carterville
  • Carterville
Type
Residential
Style
Ranch
Fireplaces
1
Garage
  • Attached
  • Garage Door Opener
Cars
2
New Construction
No
Bedrooms
4
Full Baths
2
Square Ft.
2,233
Livable Square Ft.
2,233
Acres
0.34
Apx Lot Size
123 x 118
Year Built
2003

Room Levels & Sizes

BsmtLowMainUppAddlTot
Full Baths002002
Half Baths000000
BsmtLowMainUppAddl
Bedroom 119x14
Bedroom 211x14
Bedroom 311x11
Bedroom 411x12
Living Room19x18
Dining Room13x9
Kitchen13x14
Office14x12
Third Floor

Features

Roofing
  • Shingle
Garage/Parking
  • Attached
  • Garage Door Opener
Basement
  • Crawl Space
Heating/Cooling
  • Heat Pump
  • Electric Water Heater
Water/Sewer
  • Public
  • Public Sewer
Kitchen/Dining
  • Dining Informal
Appliances
  • Dishwasher
  • Microwave
  • Range
Fireplace
  • Electric
Road/Access
  • Paved

Financials

2024 Taxes
6323
RMLS Alliance IDX

Listing information is provided by RMLS Alliance LLC courtesy of Southern Illinois Realty Experts - Herrin, Shawnna Donovan, as of 03/15/2026 15:15pm exclusively for consumers' personal, non-commercial use and may not be used for any purpose other than to identify prospective properties consumers may be interested in renting or leasing. Data is deemed reliable but is not guaranteed accurate by the MLS. The listing broker's offer of compensation is made only to participants of the MLS where the listing is filed.