Welcome Home

1502 Nagel Drive, Marion, IL 62959

$395,000

4 bed | 3 full bath | 2,560 sq ft
MLS# 1264504
I want more information
New Listings
Price Reductions
Neighborhood Trends
Value of My Home
Coming to Peoria
Leaving Peoria

A well-maintained 4-bedroom, 3-bath home offering 2560 square feet in the desirable Rolling Hills Estates subdivision-located next to Marion High School and with quick access to Illinois 13, Route 37, and I-57. Inside, you'll find two spacious living areas with a blend of hardwood and tile flooring.

The recently renovated kitchen brings a fresh, modern feel to the heart of the home. The family room includes a wood-burning fireplace and walkout access to the backyard. Important updates include a brand new roof just installed, two recently updated water heaters, a 3-year-old furnace, and a new dishwasher. The primary suite features a thoughtfully updated bathroom with heated tile floors and shower controls positioned outside the water stream so you can warm the water before stepping in. One of the additional bathrooms also offers direct access to the backyard, providing convenient entry for pool guests. A generous laundry room adds everyday practicality, featuring an upgraded dryer with a built-in hanging system designed to dry clothes without wrinkles Outside, the massive backyard is built for entertaining. The 18x32 saltwater pool is five feet deep, easy to maintain, and includes updated underground electrical service and a new pump. With plenty of green space surrounding it, the yard is perfect for gatherings, relaxing, or outdoor activities This is a well-cared-for home in one of Marion's most sought-after subdivisions, offering updates, space and prime location

Property Details

City
Marion
County
Williamson
Subdivision
Rolling Hills Estates
Schools
  • Marion
Type
Residential
Style
Ranch
Fireplaces
1
Garage
  • Attached
New Construction
No
Bedrooms
4
Full Baths
3
Square Ft.
2,560
Livable Square Ft.
2,560
Acres
0.42
Apx Lot Size
123x152
Year Built
1979

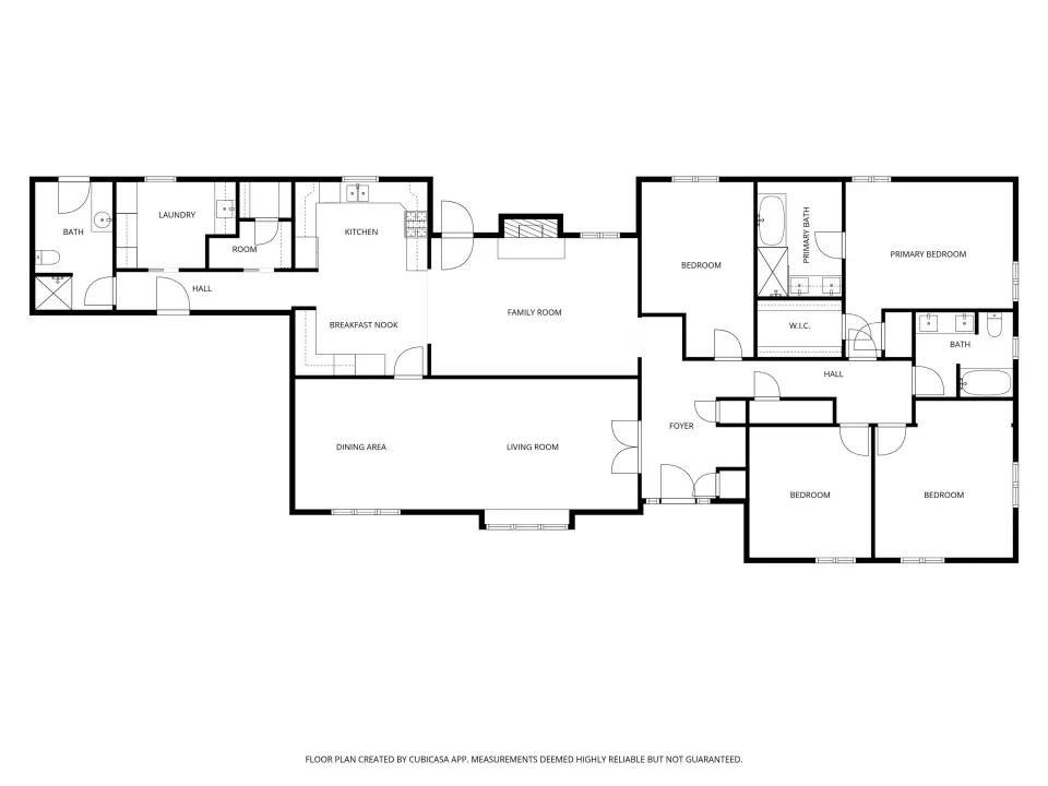
Room Levels & Sizes

BsmtLowMainUppAddlTot
Full Baths003003
Half Baths000000
BsmtLowMainUppAddl
Bedroom 116x16
Bedroom 212x12
Bedroom 313x12
Bedroom 411x17
Living Room32x12
Family Room20x13
Dining Room9x12
Kitchen10x18
Third Floor

Features

Roofing
  • Shingle
Garage/Parking
  • Attached
Basement
  • Crawl Space
Water/Sewer
  • Public Sewer
  • Public
Kitchen/Dining
  • Dining Informal
  • Eat-In Kitchen
Appliances
  • Dishwasher
  • Disposal
  • Dryer
  • Range Hood
  • Microwave
  • Range
  • Refrigerator
  • Washer
Fireplace
  • Living Room
Road/Access
  • Paved

Financials

2024 Taxes
5037.24
RMLS Alliance IDX

Listing information is provided by RMLS Alliance LLC courtesy of House 2 Home Realty, Alexander "Alec" Childers, as of 03/02/2026 14:15pm exclusively for consumers' personal, non-commercial use and may not be used for any purpose other than to identify prospective properties consumers may be interested in renting or leasing. Data is deemed reliable but is not guaranteed accurate by the MLS. The listing broker's offer of compensation is made only to participants of the MLS where the listing is filed.