Welcome Home

138 N Maple Avenue, Morton, IL 61550

$205,000

3 bed | 3 full bath | 1,598 sq ft
MLS# 1264232
I want more information
New Listings
Price Reductions
Neighborhood Trends
Value of My Home
Coming to Peoria
Leaving Peoria

A Rare Opportunity! Owned by the original family since 1949, this well-built all-brick home is filled with character and endless potential.

Situated on a double lot, it offers an excellent opportunity for restoration or renovation. Property is being sold AS IS. The upper level was designed as a private apartment for added income and includes a bedroom, living room, kitchen, bath, and small office or flex room. Built-in closets under the eaves provide generous storage. (Separate exterior entrance will need to be rebuilt.) The partially finished basement features a classic 1950s-style rumpus room with a stone gas fireplace, shuffleboard-style floor, daylight windows, and walk-out stairs from the laundry/utility area. There is also a cold canning room and small crawl space under the front porch. Custom louvered doors crafted by the original builder add charm throughout the main level. The covered front corner porch offers timeless appeal. The kitchen includes abundant cabinetry. In-floor hot water heat serves the main and upper levels, with baseboard heat in the basement. A spacious detached garage with attic storage and alley access completes the property. Do not access upper decking off kitchenette. It is unsafe. Square footage is not warranted; buyers to verify to their satisfaction. Appliances not warranted. Electrical is 60 amp, boiler pump replaced in '25, water heater replaced in '20. A/C in Lvrm doesn't work, roof replaced in '07 or '08, Pella windows in early 00's.

Property Details

City
Morton
County
Tazewell
Subdivision
Roecker
Schools
  • Morton
Type
Residential
Fireplaces
1
Garage
  • Detached
  • Alley Access
Cars
2
New Construction
No
Bedrooms
3
Full Baths
3
Square Ft.
1,598
Livable Square Ft.
2,378
Tot Basement Square Ft.
1,056
Apx Lot Size
100 x 150
Year Built
1949

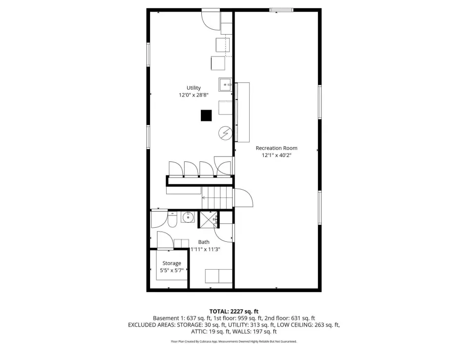
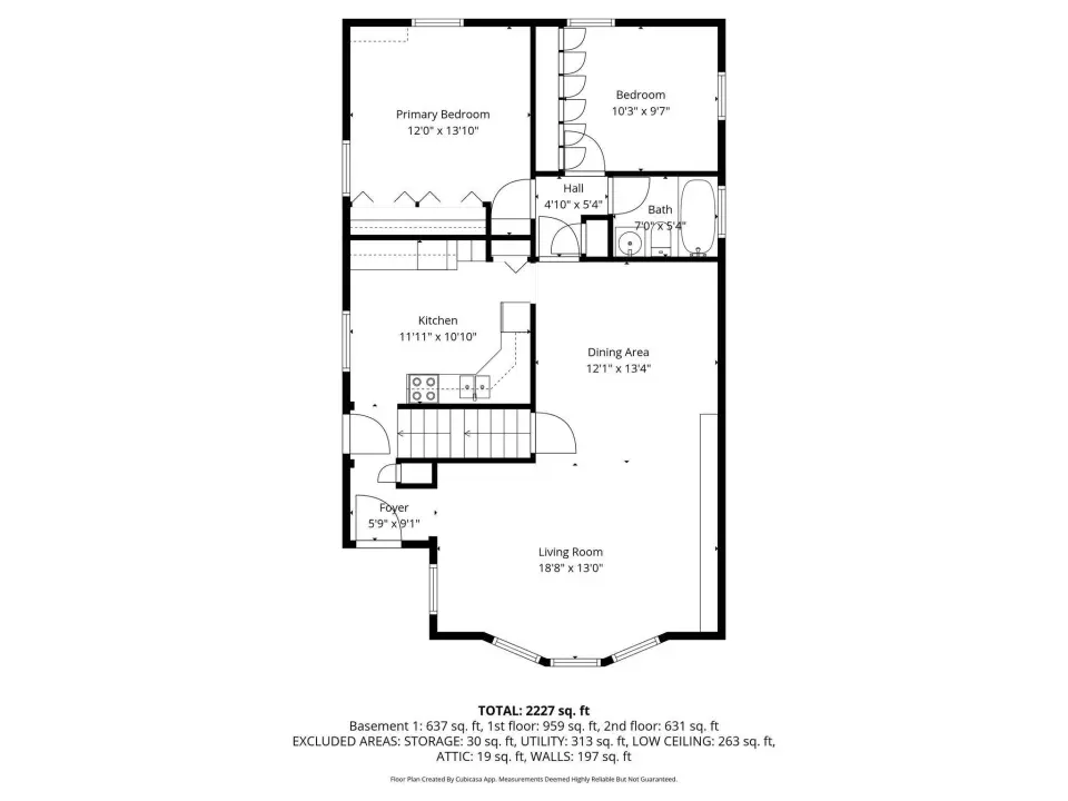
Room Levels & Sizes

BsmtLowMainUppAddlTot
Full Baths101103
Half Baths000000
BsmtLowMainUppAddl
Bedroom 110x10
Bedroom 212x12
Bedroom 311x9
Living Room18x11
Dining Room13x14
Kitchen12x11
Office12x7
Recreation Room40x12
Laundry23x12
Additional Room13x13
Additional Room 214x13
Third Floor

Features

Roofing
  • Shingle
Garage/Parking
  • Detached
  • Alley Access
Basement
  • Daylight
  • Full
  • Walk-Out Access
  • Partially Finished
Heating/Cooling
  • Natural Gas
  • Baseboard
  • Hot Water
  • Radiant
  • Gas Water Heater
Water/Sewer
  • Public
  • Public Sewer
Kitchen/Dining
  • Dining Informal
  • Eat-In Kitchen
  • Pantry
Appliances
  • Dishwasher
  • Range
Fireplace
  • Gas Starter
  • Recreation Room

Financials

2024 Taxes
3890.2
RMLS Alliance IDX

Listing information is provided by RMLS Alliance LLC courtesy of RE/MAX Traders Unlimited, Laura Martin, as of 03/06/2026 14:15pm exclusively for consumers' personal, non-commercial use and may not be used for any purpose other than to identify prospective properties consumers may be interested in renting or leasing. Data is deemed reliable but is not guaranteed accurate by the MLS. The listing broker's offer of compensation is made only to participants of the MLS where the listing is filed.