Welcome Home

17518 N 2Nd Street, Chillicothe, IL 61523

$174,900

4 bed | 2 full bath | 1,122 sq ft
MLS# 1262747
I want more information
New Listings
Price Reductions
Neighborhood Trends
Value of My Home
Coming to Peoria
Leaving Peoria

This well-maintained 4-bedroom, 2-full-bath home in Chillicothe offers a flexible layout and numerous updates throughout.

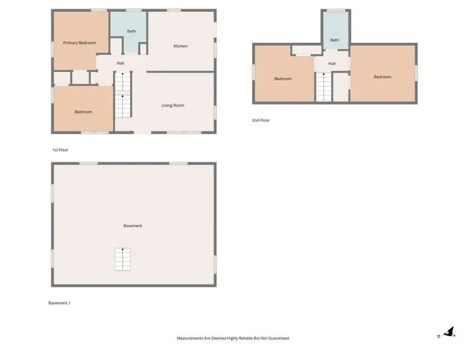
Stepping inside, you’re welcomed into the living room which flows nicely into the eat-in kitchen featuring newer flooring, appliances that stay, and ample cabinet space. The main floor offers two bedrooms and a full bathroom, including a walk-in tub installed within the last few years. Upstairs you’ll find two additional bedrooms and a second full bath. The basement is unfinished, providing excellent storage or future finishing potential. Mechanical updates include a high-efficiency furnace & A/C, and a whole-house generator for added peace of mind. Vinyl replacement windows are in place throughout the home. Outside, enjoy a mostly fenced yard with patio area, a 3-season breezeway, and a 2-car garage with epoxy floor. Additional exterior features include gutter guards and newer front concrete. All situated on a large lot with a spacious backyard, this home offers solid updates, functionality, and comfort.

Property Details

City
Chillicothe
County
Peoria
Subdivision
Shore Acres
Schools
  • South
  • Chillicothe
  • Il Valley Central High District #321
Type
Residential
Exterior
  • Shed(S)
  • Replacement Windows
Garage
  • Attached
  • Garage Door Opener
Cars
2
New Construction
No
Zoning
Residential
Bedrooms
4
Full Baths
2
Square Ft.
1,122
Livable Square Ft.
1,122
Tot Basement Square Ft.
768
Acres
0.44
Apx Lot Size
142.50 x 135
Year Built
1964

Room Levels & Sizes

BsmtLowMainUppAddlTot
Full Baths001102
Half Baths000000
BsmtLowMainUppAddl
Bedroom 112x11
Bedroom 212x9
Bedroom 312x11
Bedroom 413x11
Living Room16x11
Kitchen13x12
Laundry0x0
Additional Room17x12
Third Floor

Features

Exterior
  • Shed(S)
  • Replacement Windows
Roofing
  • Shingle
Garage/Parking
  • Attached
  • Garage Door Opener
Basement
  • Full
  • Unfinished
Heating/Cooling
  • Natural Gas
  • Forced Air
  • Gas Water Heater
Water/Sewer
  • Private
  • Public Sewer
Kitchen/Dining
  • Eat-In Kitchen
Appliances
  • Dryer
  • Range Hood
  • Range
  • Refrigerator
  • Washer
Exterior Amenities
  • Shed(S)
  • Replacement Windows
Road/Access
  • Paved

Financials

2024 Taxes
2015.78
RMLS Alliance IDX

Listing information is provided by RMLS Alliance LLC courtesy of RE/MAX Traders Unlimited, Rich Gillespie, as of 12/08/2025 15:30pm exclusively for consumers' personal, non-commercial use and may not be used for any purpose other than to identify prospective properties consumers may be interested in renting or leasing. Data is deemed reliable but is not guaranteed accurate by the MLS. The listing broker's offer of compensation is made only to participants of the MLS where the listing is filed.