Welcome Home

1800 Willow Street, Pekin, IL 61554

$135,000

3 bed | 1 full bath | 1,184 sq ft
MLS# 1261648
I want more information
New Listings
Price Reductions
Neighborhood Trends
Value of My Home
Coming to Peoria
Leaving Peoria

Stylish Simplicity Meets Modern Comfort! Step into this beautifully updated one-level ranch, where clean lines and contemporary colors create a fresh, inviting atmosphere while the single-level floor plan ensures easy accessibility.

The open-concept layout offers seamless flow between living, dining, and kitchen spaces—perfect for everyday living and effortless entertaining. Beautifully refreshed with an updated kitchen and bath, plus newer carpet and fresh paint throughout, while major improvements in 2023—including a new roof, windows, furnace, and electrical system—offer peace of mind and long-term value. The attached one-stall garage offers everyday convenience, complemented by a spacious yard and a handy storage shed. Whether you're starting out, downsizing, or simply craving low maintenance living, this home delivers comfort, style, and functionality in one smart package.

Property Details

City
Pekin
County
Tazewell
Subdivision
Willow Park East
Schools
  • Pekin Community
Type
Residential
Style
Ranch
Exterior
  • Shed(S)
Garage
  • Attached
Cars
1
New Construction
No
Bedrooms
3
Full Baths
1
Square Ft.
1,184
Livable Square Ft.
1,184
Apx Lot Size
138 x 70
Year Built
1963

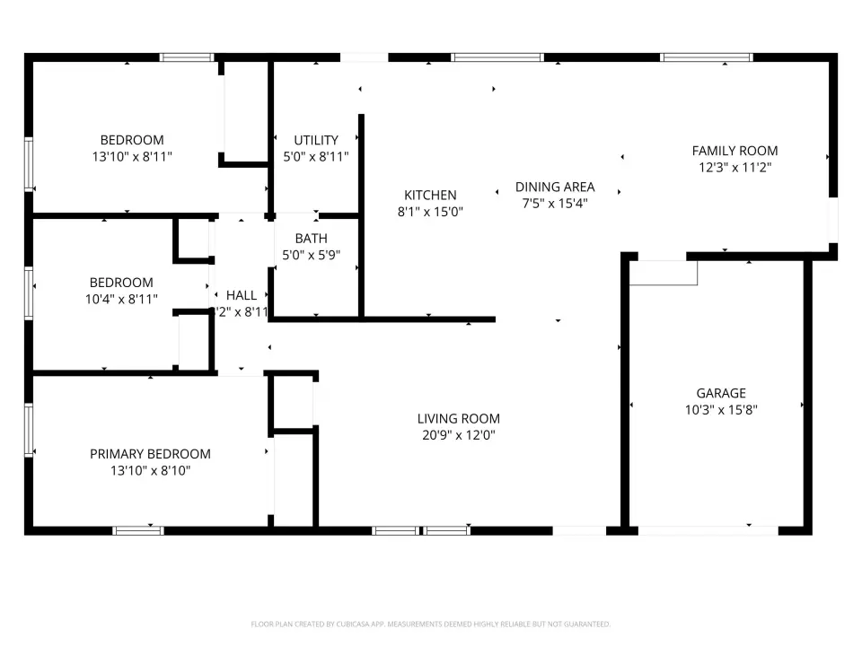
Room Levels & Sizes

BsmtLowMainUppAddlTot
Full Baths001001
Half Baths000000
BsmtLowMainUppAddl
Bedroom 113x8
Bedroom 213x8
Bedroom 310x8
Living Room20x12
Family Room12x11
Dining Room15x7
Kitchen15x8
Laundry8x5
Third Floor

Features

Exterior
  • Shed(S)
Roofing
  • Shingle
Garage/Parking
  • Attached
Basement
  • Crawl Space
Heating/Cooling
  • Natural Gas
  • Forced Air
Water/Sewer
  • Public
  • Public Sewer
Kitchen/Dining
  • Breakfast Bar
  • Dining Informal
  • Island
Appliances
  • Dishwasher
  • Microwave
  • Range
  • Refrigerator
  • Washer
  • Dryer
Exterior Amenities
  • Shed(S)
Road/Access
  • Paved

Financials

2024 Taxes
2803.98
RMLS Alliance IDX

Listing information is provided by RMLS Alliance LLC courtesy of The Real Estate Group Inc., Darcy Lawson, as of 10/20/2025 15:15pm exclusively for consumers' personal, non-commercial use and may not be used for any purpose other than to identify prospective properties consumers may be interested in renting or leasing. Data is deemed reliable but is not guaranteed accurate by the MLS. The listing broker's offer of compensation is made only to participants of the MLS where the listing is filed.