Welcome Home

1717 N 6Th Street, Chillicothe, IL 61523

$134,900

3 bed | 2 full bath | 1,092 sq ft
MLS# 1261568
I want more information
New Listings
Price Reductions
Neighborhood Trends
Value of My Home
Coming to Peoria
Leaving Peoria

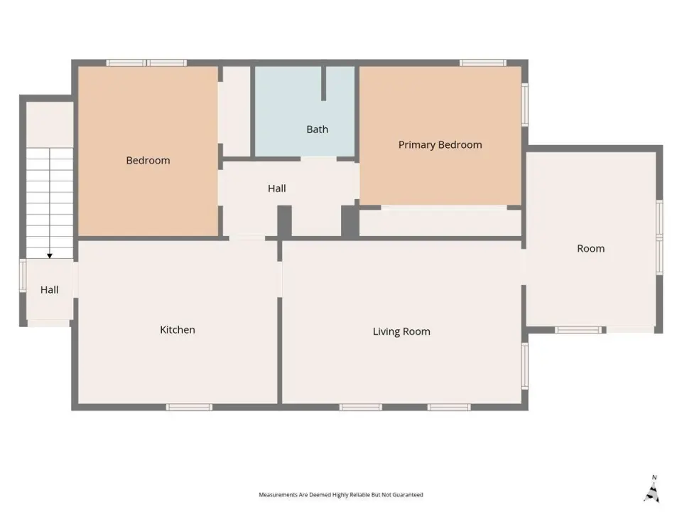
SELLER IS CALLING FOR ALL OFFERS TO BE SUBMITTED BY NOON ON WEDNESDAY, 10/15/2025. This fully updated three-bedroom, two-bath ranch in the IVC school district offers comfort and peace of mind with extensive recent improvements inside and out.

The main floor features two bedrooms with refinished hardwood floors, a remodeled full bath, and a bright living room with new flooring. The kitchen has been updated with new countertops, flooring, backsplash, faucet, and freshly painted white cabinets. The range, dishwasher, and microwave are brand new, and the refrigerator is included. Both bathrooms have been completely remodeled, and the finished basement adds a rec room, bedroom with egress window, laundry area, and full bath. Major updates include all-new HVAC and ductwork, new plumbing in the basement, new vinyl siding and windows, added insulation in exterior walls and attic, and a newer roof (approximately seven years old). The garage features a brand-new overhead door and service door. Move-in ready and beautifully updated, this home combines nice finishes with efficient improvements throughout!

Property Details

City
Chillicothe
County
Peoria
Subdivision
Santa Fe
Schools
  • South
  • Chillicothe
  • Il Valley Central High District #321
Type
Residential
Style
Ranch
Garage
  • Detached
Cars
1
New Construction
No
Bedrooms
3
Full Baths
2
Square Ft.
1,092
Livable Square Ft.
1,252
Tot Basement Square Ft.
1,092
Acres
0.24
Apx Lot Size
75x142
Year Built
1942

Room Levels & Sizes

BsmtLowMainUppAddlTot
Full Baths101002
Half Baths000000
BsmtLowMainUppAddl
Bedroom 113x10
Bedroom 212x10
Bedroom 310x8
Living Room18x12
Kitchen15x12
Third Floor

Features

Roofing
  • Shingle
Garage/Parking
  • Detached
Basement
  • Full
  • Partially Finished
Heating/Cooling
  • Natural Gas
  • Forced Air
  • Gas Water Heater
Water/Sewer
  • Public
  • Public Sewer
Kitchen/Dining
  • Eat-In Kitchen
Appliances
  • Dishwasher
  • Range Hood
  • Microwave
  • Range
  • Refrigerator
Road/Access
  • Paved

Financials

2024 Taxes
2528.54
RMLS Alliance IDX

Listing information is provided by RMLS Alliance LLC courtesy of RE/MAX Traders Unlimited, Rich Gillespie, as of 10/13/2025 17:45pm exclusively for consumers' personal, non-commercial use and may not be used for any purpose other than to identify prospective properties consumers may be interested in renting or leasing. Data is deemed reliable but is not guaranteed accurate by the MLS. The listing broker's offer of compensation is made only to participants of the MLS where the listing is filed.